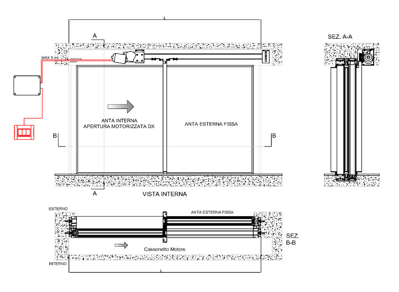
Automazione, performance ed elevati standard di sicurezza sono le tre caratteristiche fondamentali della finestra del futuro, per questo Master ha introdotto, già da alcuni anni, nella propria gamma i sistemi per home automation con le linee WiCloud, Cloud e WiSlide.In questo inizio 2018 l’azienda continua gli investimenti nel mondo della automazione lanciando la nuova versione di WiSlide 500 (Art. 1122.5) con una centralina di comando completamente aggiornata nell’estetica e nelle funzionalità.WiSlide 500 è il sistema di automazione ad incasso, pertanto completamente invisibile, per infissi scorrevoli con portata fino a 500 kg con centrale di controllo e motore di trascinamento.La nuova centralina di comando del sistema, rispetto alla precedente versione, in ottica di riduzione dell’impatto estetico riduce le sue dimensioni del 50%.Con la nuova centrale è possibile programmare in pochi minuti il sistema tramite dip-switch senza necessità di collegare apparecchi esterni e software dedicati.Forza, velocità di scorrimento e velocità di rallentamento sono regolabili tramite appositi trimmer, per evitare gli impatti violenti tra anta e telaio in fase di chiusura e garantire sempre la massima sicurezza nel caso di ostacoli non previsti lungo la corsa dell’anta.La nuova centralina è dotata, inoltre, di un modulo radio integrato compatibile con i radiocomandi Master Art. 1121.50 ed è universale, in quanto gestisce sia le aperture verso destra che verso sinistra tramite l’inversione dei cavi di alimentazione del motore. Nel caso di ante molto pesanti o situazioni con particolari attriti il sistema è in grado di essere installato nella configurazione con due motorizzazioni una a sostegno dell’altra anziché nella classica configurazione motore puleggia di rinvio. La nuova centralina, inoltre, è in grado di gestire vari sistemi di chiusure elettro-meccaniche o elettro-magnetiche di tipo normalmente chiuso. WiSlide 500 con questo upgrade si pone ai vertici della categoria, in termini di prestazioni, funzionalità e facilità d’installazione.
Comunicato stampa
Scarica







